|  | 
               
                |  |   
                | 
                     
                      
                      
                      |   | 
                        
                          | Caratteristiche cantiere |  
                          | La Famiglia Pieve 88 S.C. 16° Lotto - Piano Lottizzazione P.P.I. Via Baia del Re
 n. 16 fabbricati
 n. 112 appartamenti
 Contatti Ufficio Assegnazioni 030 - 3716755
 |  
 
                          
                            | Descrizione villetta a schiera |  
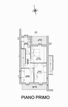
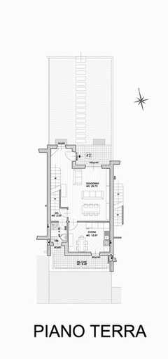
                            | Disponiamo di villetta a schiera disposta su tre livelli: al piano terra soggiorno, cucina separata ed abitabile con balcone, portico, bagno di servizio, disimpegno, giardino privato e scala che collega piano primo e piano seminterrato; al piano primo 3 camere da letto, di cui quella doppia con loggia e quelle singole con balcone, bagno e disimpegno; nel seminterrato box auto doppio e cantina.
La villetta è dotata di pannelli solari ad integrazione della produzione di acqua calda sanitaria ed impianto termico autonomo con caldaia a condensazione.
CLASSE ENERGETCA B Rif. SCHIERA A n. 42 |  
 |   
                      | 
 
									  
									    | Scheda tecnica |  
									    | Tipologia | Zona | Mq Commerciali | Costo |  
									    
									    
									    
									    
								        
										| Stato attuale: 
										  
													Immobile da Assegnare |   
										| 
 
 
 |   
										|   |   |   |   
										|   |  |  |   
										| 
| Descrizione ambienti |   |  
| Piani | 3 |   |   |   |   |  
| Soggiorno | 1 |   |   |   |   |  
| Cucina | 1 |   |   |   |   |  
| Disimpegni | 2 |   |   |   |   |  
| Camere da letto | 3 |   |   |   |   |  
| Bagni | 2 |   |   |   |   |  
| Balconi/Logge | 3 |   |   |   |   |  
| Portico | 1 |   |   |   |   |  
| Box auto doppio | 1 |   |   |   |   |  
| Cantina | 1 |   |   |   |   |  |  
 |  Modalità di Pagamento
 Modalità di Assegnazione
 
 |  |